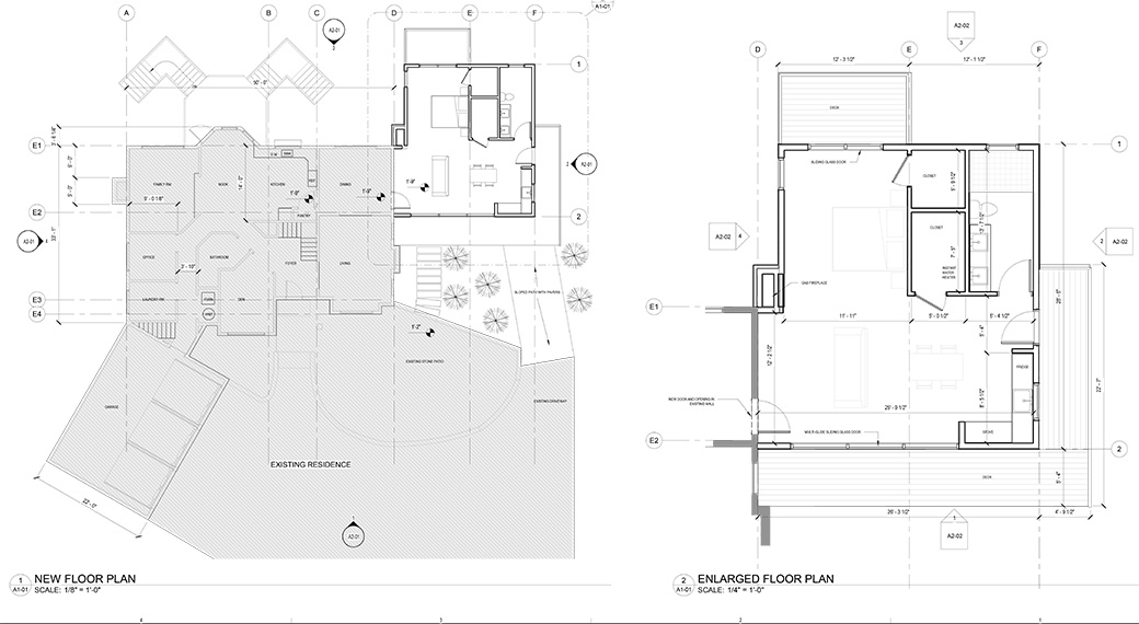
age-in-place addition, seattle  -  under construction)

The homeowners want to plan for their future needs by adding a ground floor suite. Located on over 2 acres and surrounded by cedar forest, our focus was to harness the natural light throughout all rooms of the house. The new addition has been oriented to ensure existing trees are untouched and privacy is maintained by the natural elements.

Completed: 1000SF hand cut stone patio. Weathered brick perimeter wall used to match existing house. Designed and managed by Hiei Rose Design.